Proyecto

Guadalajara Expo Plaza

Cómo se realizó el Proyecto

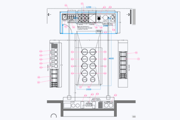
El diseño de la cocina en el Hotel Guadalajara Plaza es una combinación de funcionalidad, eficiencia y estilo, diseñado para satisfacer las necesidades tanto de los chefs como de los huéspedes. Cada detalle ha sido cuidadosamente considerado para crear un espacio que ofrezca una experiencia culinaria excepcional y segura.
El diseño de la cocina del Hotel Guadalajara Plaza se caracteriza por los siguientes aspectos:
.

Equipo de alta calidad:

La cocina está equipada con electrodomésticos y equipos de cocina de última generación que garantizan un rendimiento óptimo. Esto incluye cocinas, hornos, parrillas y sistemas de refrigeración de alta capacidad.

Almacenamiento eficiente:

La cocina cuenta con un espacio de almacenamiento bien planificado para ingredientes secos y perecederos. Los sistemas de refrigeración y congelación están diseñados para mantener los alimentos frescos y seguros.

Distribución eficiente:

La cocina se organiza de manera que los chefs y el personal de cocina puedan moverse de manera eficiente entre las áreas de preparación, cocción y montaje. Esto garantiza un flujo de trabajo sin problemas y una producción de alimentos rápida y precisa.

Mantenimiento Preventivo:

Implementamos un plan de mantenimiento proactivo para garantizar el funcionamiento sin problemas de la cocina a lo largo del tiempo.

Teléfono

33 1782 2002

Dirección

Mar Báltico 2240 PH, Country Club 44160, Guadalajara, Jal.

Correo Electrónico

contacto@webkitchen.mx